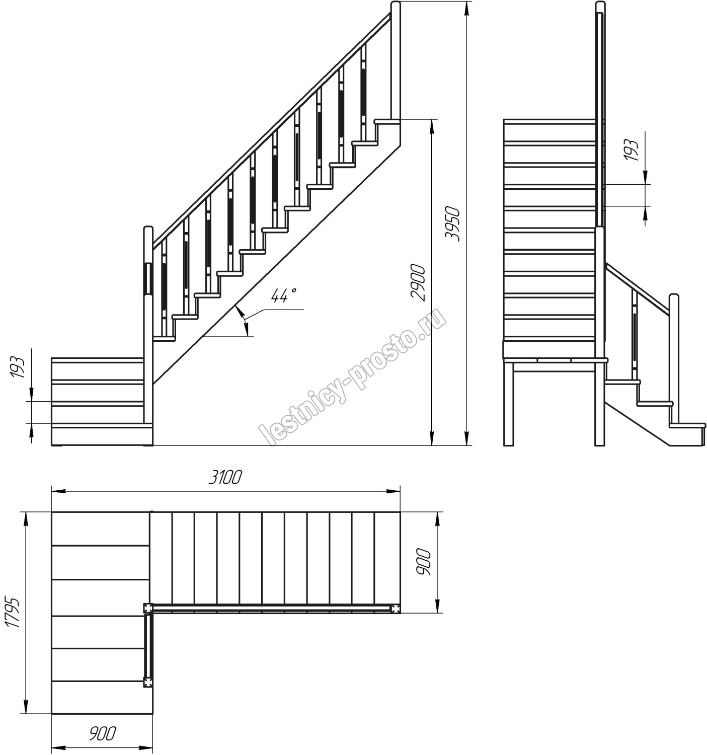
Расчёт лестницы

Деревянная межэтажная лестница ЛЕС-08, Бук



Код товара: 41962

Доступно к заказу: 10 шт.

Доставка в Абакан: от 3-х дней

Условия доставки

Высота шага 193 мм

Угол наклона 44° °

Наступная часть 200 (мм)

321 640

+

Описание:

Универсальная лестница, имеющая в основе своей конструкции наклонную опорную балку. Легко впишется в любой интерьер, даже на неровном полу. Место под площадкой можно закрыть и использовать для хранения различных предметов. Монтаж осуществляется силами двух человек на объекте по указаниям, приведенным в паспорте на лестницу.

Упаковка:

Покраска

от 25 300

Любой цвет, подбор по образцу. Надёжные средства. Качественное нанесение

подробнее
Стоимость монтажа

Монтаж:

от 23 810

Качественный монтаж опытными специалистами с учётом всех нюансов

Подробнее

Покраска деревянных элементов лестницы

от 25 300

Вы можете заказать у нас профессиональную покраску деревянных элементов лестницы.
Ниже представлена палитра наиболее популярных расцветок. Выкрасы выполнены на сосне.
На образцы нанесен 1 слой краски и 2 слоя воска.
Обратите внимание! Оттенок на экране может отличаться от ожидаемого, мы настоятельно рекомендуем посетить наш шоу-рум для ознакомления с образцами выкрасов.
Всю доступную палитру на разных породах дерева можно посмотреть, перейдя по этой ссылке

8510 Белый

8535 Сталь

8532 Орех

8533 Дуб копчёный

8539 Коричневый

8542 Тик тёмный

8543 Мербау

8544 Дуб бразильский

8546 Венге

8548 Дуб натуральный

Шоколад (Лайнос)

8536 Каппучино

8543 Сахара

Любой ваш цвет

Монтаж лестницы

Наша компания осуществляет профессиональный монтаж лестниц любого вида сложности. В нашем портфолио более 300 благополучно установленных интерьерных и наружных лестниц.

Монтаж за 1-2 дня

Бережная точная сборка лестницы

Увезём за собой мусор

Вернём оплату замера при монтаже нашей лестницы

от 23 810

Указана цена исключительно на монтаж лестницы, любые дополнительные работы, связанные с несовершенством стен, углов, устранением дополнительных препятствий при установке лестницы - изменят стоимость работ.
Так же, на стоимость влияет удалённость объекта. Точную стоимость установки лестницы мы можем объявить только после осмотра помещения специалистом и совершения необходимых замеров.

Ранее вы смотрели